VILLA DE OBRA NUEVA EN CALPE
Villa de nueva construcción situada en una de las zonas residenciales preferidas por todos los residentes de Calpe, por su proximidad al centro del pueblo, a las playas y al mismo tiempo por ser una zona tranquila pero segura, ya que se encuentra en las afueras del casco urbano.
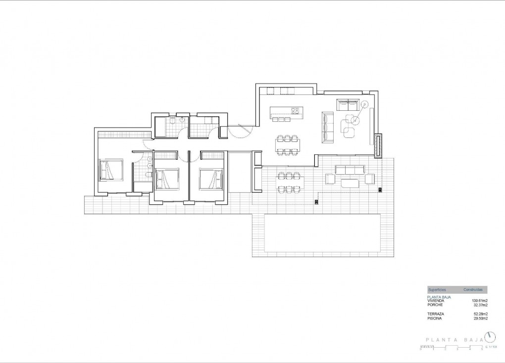
La vivienda se ha planteado en una sola planta, lo que hace que este proyecto sea práctico y cómodo.
Toda la parcela está vallada y tiene un seto de cipreses en su interior, lo que proporciona privacidad y un entorno agradable.
Desde la entrada principal a la vivienda accedemos a un hall, desde el que a la izquierda accedemos a la zona de día, compuesta por un salón con comedor y cocina abierta con isla. Desde el salón accedemos al exterior, donde tenemos una zona de porche cubierto con barbacoa y una amplia terraza con piscina de 40m2.
En la parte derecha de la casa se encuentra la zona de descanso, con 4 dormitorios: la suite principal con vestidor y baño, otro dormitorio con baño en suite y dos dormitorios más que comparten un baño. También hay una zona de lavandería.
En el exterior hay una zona de aparcamiento con una pérgola en forma de vela para dos coches.
Calpe, uno de los pueblos de La Marina Alta, se encuentra en la costa norte de la provincia de Alicante, rodeado por los pueblos de Altea, Benidorm, Teulada-Moraira, Benissa.
Calpe tiene una maravillosa mezcla de antigua cultura valenciana y modernas instalaciones turísticas. Es una gran base desde la que explorar la zona local o disfrutar de las numerosas playas locales. Sólo Calpe tiene tres de las más bellas playas de arena de la costa.
Calpe también cuenta con dos clubes de vela: Real Club Náutico de Calpe y Club Náutico de Puerto Blanco.
El pueblo pesquero de Calpe ahora se ha transformado en un imán turístico, la ciudad se encuentra en una ubicación ideal, de fácil acceso por la autopista A7 y la N332 que va desde Valencia a Alicante; es aproximadamente 1 hora en coche desde el aeropuerto de Alicante y 1,5 horas al aeropuerto de Valencia.
La información proporcionada por el conversor de divisas es orientativa y no constituye parte de ningún contrato. El precio final indicado no incluye impuestos (ITP/IVA) ni gastos notariales y registrales, que se calcularán según las tarifas y tasas vigentes.