Uudisrakennusasunnot Los Balconesissa, Torreviejassa
Moderneja koteja ensiluokkaisella asuinalueella
Tutustu tähän viehättävään uudisrakennusasuinkompleksiin Los Balconesissa, yhdessä Torreviejan laitamien suosituimmista ja vakiintuneimmista kaupunginosista. Rauhallisessa ympäristössä, josta on erinomaiset yhteydet kaikkiin tärkeisiin palveluihin, tämä alue on vain 4 km:n päässä Costa Blancan hiekkarannoista. Los Balcones tunnetaan rennosta tunnelmastaan, leveistä kaduistaan, viheralueistaan ja läheisyydestään sairaaloihin, supermarketteihin, ravintoloihin ja ostoskeskuksiin, mikä tekee siitä ihanteellisen ympärivuotiseen asumiseen tai lomailuun.
Nykyaikaisia asuntoja, joissa on omat ulkotilat
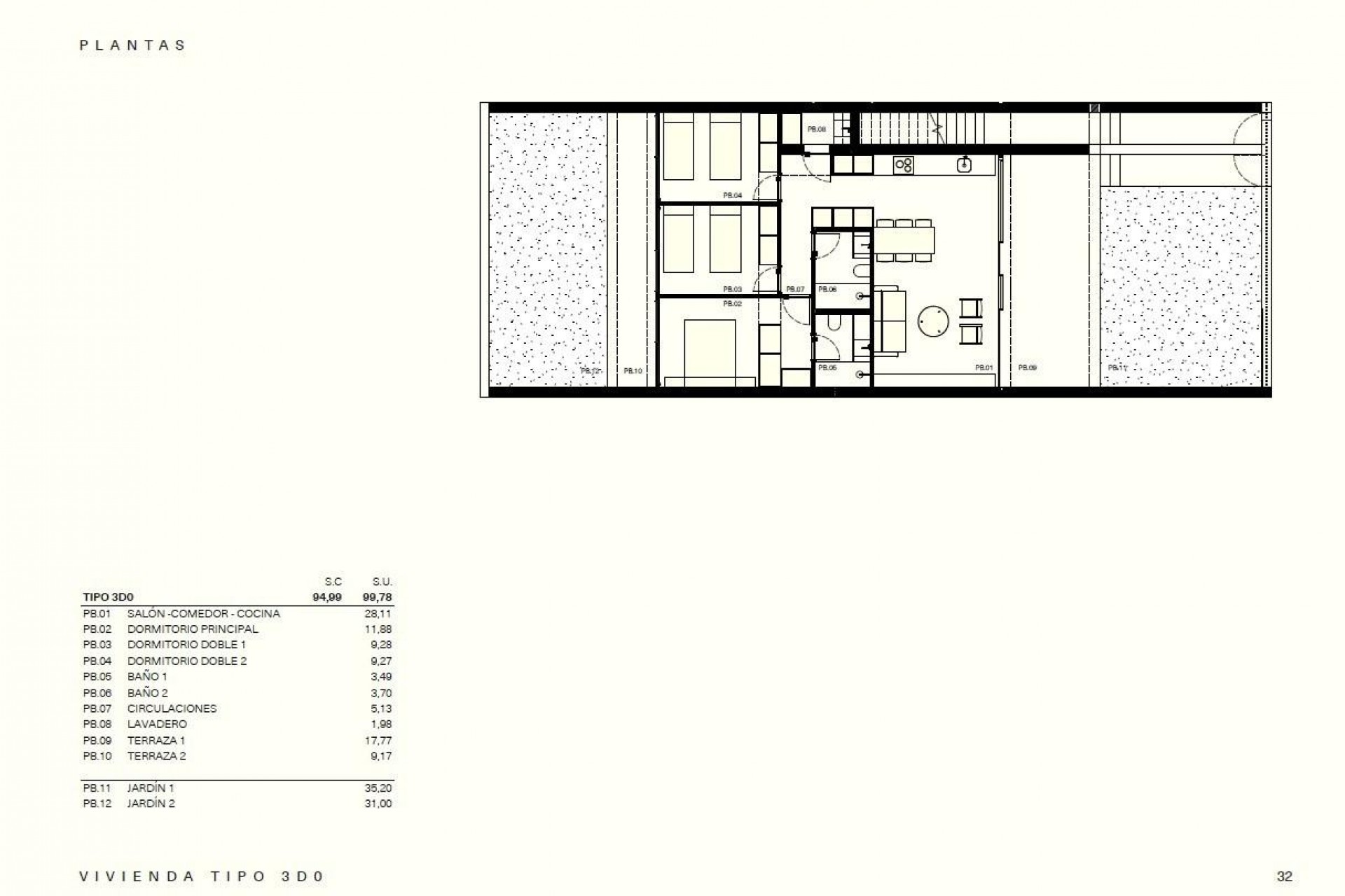
Kompleksi koostuu 52 modernista asunnosta, joiden kokonaispinta-ala on 6700 m2. Jokaiseen kiinteistöön kuuluu oma pysäköintipaikka ja varastotila maanalaisessa tilassa. Kodeissa on 2 tai 3 makuuhuonetta ja 2 kylpyhuonetta, joista toinen on omalla kylpyhuoneella.
Ostajat voivat valita pohjakerroksen asuntoja, joissa on oma puutarha, tai yläkerran asuntoja, joissa on tilava terassi ja oma solarium. Nämä pohjaratkaisut on suunniteltu maksimoimaan luonnonvalo ja tarjoamaan mukavia sisä- ja ulkotiloja, joissa voi nauttia Välimeren ilmastosta ympäri vuoden.
Yhteisalueet suunniteltu rentoutumiseen
Projekti on jaettu neljään kortteliin, jotka ympäröivät suurta yhteistä aluetta. Tässä vihreässä sydämessä on uima-allas, jossa on oma lastenalue, ja kauniisti maisemoidut puutarhat. Nämä yhteiset tilat sopivat täydellisesti rentoutumiseen, seurusteluun ja perheen yhteiseen aikaan turvallisessa ja ystävällisessä ympäristössä.
Laadukkaat ominaisuudet ja energiatehokas suunnittelu
Jokainen asunto on rakennettu nykyaikaisten standardien mukaisesti ja niihin kuuluu esiasennettu kanavistoilmastointi, energiatehokkuutta parantava ilmalämpöpumppu, ulkovalaistus ja kaksinkertaiset lasitetut ulkoseinät. Keittiöt ovat täysin kalustettuja, tarjoten toimivan ja tyylikkään tilan päivittäiseen elämään.
Nämä ominaisuudet takaavat korkean mukavuustason, vähäisen huollon ja pienen energiankulutuksen, mikä tekee kodeista sekä käytännöllisiä että kestäviä.
Erinomainen sijainti lähellä rantoja ja golfkenttää
Los Balcones tarjoaa strategisen sijainnin lähellä monia kiinnostavia kohteita. Torreviejan rannat ovat noin 4 km:n päässä. Useita tunnettuja golfkenttiä, kuten Villamartin Golf, Las Ramblas Golf ja Campoamor Golf, sijaitsee 10–15 km:n säteellä. Torreviejan yliopistollinen sairaala on alle 2 km:n päässä, mikä lisää mukavuutta ja mielenrauhaa.
Torreviejan keskustaan on noin 5 km, josta on bussiyhteys Los Balconesiin, josta löydät laajan valikoiman kauppoja, ravintoloita, kulttuurikohteita ja vilkkaan venesataman. Alicanten kansainvälinen lentokenttä sijaitsee noin 42 km:n päässä, tarjoten helpot kansainväliset yhteydet. Torreviejan satamaan on noin 6 km.
Ihanteellinen asumiseen tai sijoitukseen
Modernin suunnittelun, erinomaisten yhteisten tilojen ja erinomaisen sijainnin lähellä rantoja, golfkenttiä ja palveluita ansiosta tämä uusi asuinalue Los Balcones Torreviejassa sopii täydellisesti pysyväksi asunnoksi, loma-asunnoksi tai sijoituskohteeksi.
Ota yhteyttä jo tänään saadaksesi lisätietoja tai sopiaksesi esittelyn näistä uusista asunnoista Los Balconesissa, Torreviejassa.
Lainalaskurin antama tieto on viitteellinen, eikä se muodosta sopimusta. Ilmoitettu hinta ei sisällä veroja (ALV/varainsiirtovero) eikä notaari- ja rekisterimaksuja, jotka lasketaan voimassa olevien hintojen ja tariffien mukaisesti.