Nybyggd lyxvilla med havsutsikt i La Alberca Polop
Modern design i en lugn bergsmiljö
Denna exceptionella nybyggda villa ligger i La Alberca, ett lugnt bostadsområde i bergen i Polop. Fastigheten är omgiven av skog och natur och erbjuder panoramautsikt över Medelhavet, bergen och den historiska staden Polop. Villan är designad med vertikal arkitektonisk elegans och kombinerar avskildhet, funktionalitet och ett smidigt inomhus- och utomhusliv.
Polop är en charmig by på Costa Blanca som är känd för sin traditionella atmosfär och naturskönhet. Villan ligger nära alla tjänster i La Nucia, inklusive butiker, restauranger, idrottsanläggningar och skolor. Stränderna och livliga kuststäder som Benidorm och Altea ligger bara 15 minuter bort.
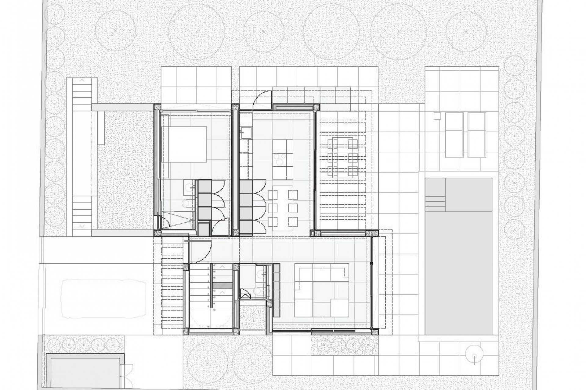
Genomtänkt planlösning på tre våningar
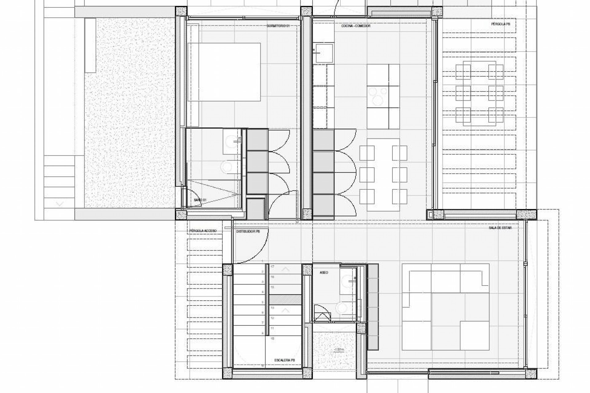
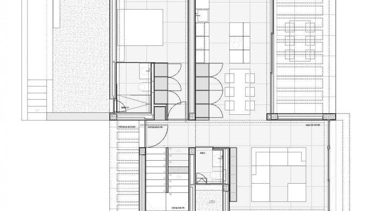
På bottenvåningen välkomnas du av en entréhall med inbyggd garderob och gästtoalett. På denna våning finns ett sovrum med eget badrum och fönster som kan öppnas från golv till tak och vetter mot en privat sidoterrass. Det ljusa vardagsrummet och matsalen i öppen planlösning ansluter direkt till en pergola-täckt terrass och den privata saltvattenpoolen, vilket skapar en harmonisk livsstil inomhus och utomhus.
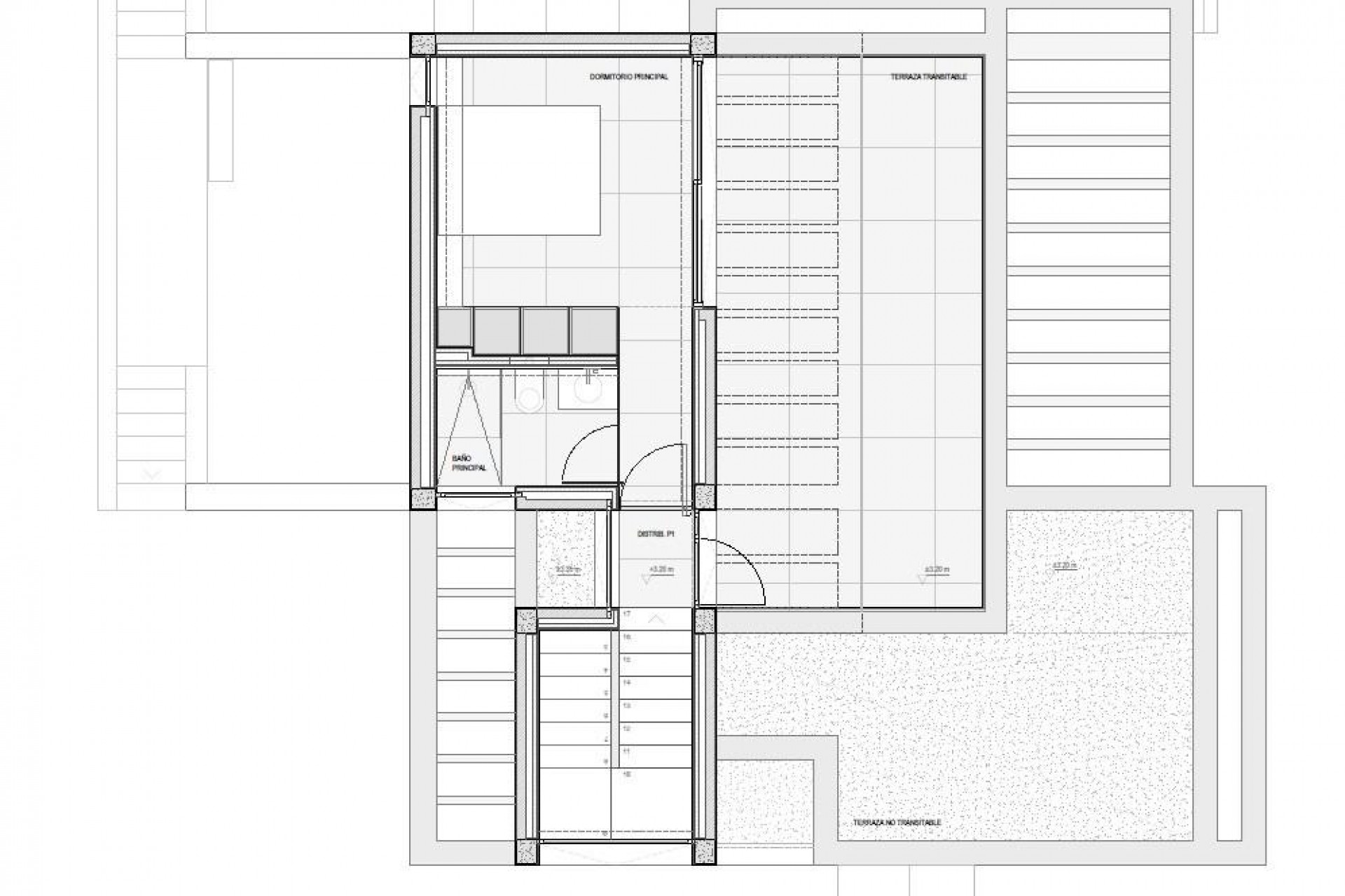
Översta våningen är helt dedikerad till mastersviten. Denna privata våning erbjuder ett sovrum med eget badrum och tillgång till en spektakulär 40 m2 stor terrass med fantastisk panoramautsikt över havet och bergen, vilket garanterar maximal avskildhet och komfort.
Källarvåningen har ytterligare två sovrum med stora fönster som vetter mot en vackert utformad nedsänkt innergård som fyller rummet med naturligt ljus. Ett delat badrum, ett fullt utrustat tvättrum med vitvaror från Haier och två rymliga teknik- och förrådsrum kompletterar denna våning.
Premiumfunktioner och energieffektivitet
Villan har högkvalitativa ytbehandlingar och avancerade system, såsom:
Central köksö med integrerade BOSCH-vitvaror
Bänkskivor i natursten inomhus och utomhus
Panoramafönster med solskyddat förstärkt glas
Mitsubishi aerotermiskt luftkonditioneringssystem
Förinstallation för golvvärme
Energieffektivitetsklass A
Förinstallation för smart hem-system
Privat parkering för två fordon
Den anlagda medelhavsträdgården med automatisk bevattning och en elegant innergård på nedre plan ökar avskildheten och avkopplingen. Taket är förberett för installation av solpaneler.
Utmärkt läge och avstånd
Polop centrum 2 km
La Nucia 4 km
Benidorms stränder 12 km
Altea 10 km
Villaitana Golf 14 km
Alicante flygplats 65 km
Upptäck din privata tillflyktsort i Polop
Denna moderna villa med havsutsikt erbjuder design, avskildhet och komfort i en av de mest attraktiva naturmiljöerna på Costa Blanca. Kontakta oss idag för att boka en privat visning och säkra ditt nya hem i La Alberca Polop.
Den information som ges här utgör inte någon del av något kontrakt. Erbjudandet kan ändras eller dras tillbaka utan förvarning. Det angivna priset inkluderar inte skatter (moms/överlåtelseskatt) eller notarie- och registeravgifter, vilka beräknas enligt aktuella priser och tariffer.