Modern nybyggd villa nära havet i Javea
Exklusivt medelhavsliv i Javea
Upptäck denna fantastiska moderna villa belägen i ett av de mest eftertraktade och fridfulla områdena i Javea, bara 800 meter från havet. Belägen mellan tallar och nära de berömda Cala de la Barraca och Cala del Portixol, erbjuder denna bostad en privilegierad livsstil omgiven av natur och kustens skönhet. Javea, beläget på Costa Blanca mellan Alicante och Valencia, är känt för sitt kristallklara vatten, charmiga gamla stan och milda klimat året runt, vilket gör det till en av de mest eftertraktade destinationerna i Medelhavet.
Elegant design och ljusa öppna ytor
Denna villa är designad för komfort och stil och har en modern arkitektur med mjuka linjer, stora fönster och en flytande integration mellan inomhus och utomhus. Naturligt ljus badar varje hörn och skapar en varm och inbjudande atmosfär som är idealisk för både boende och underhållning.
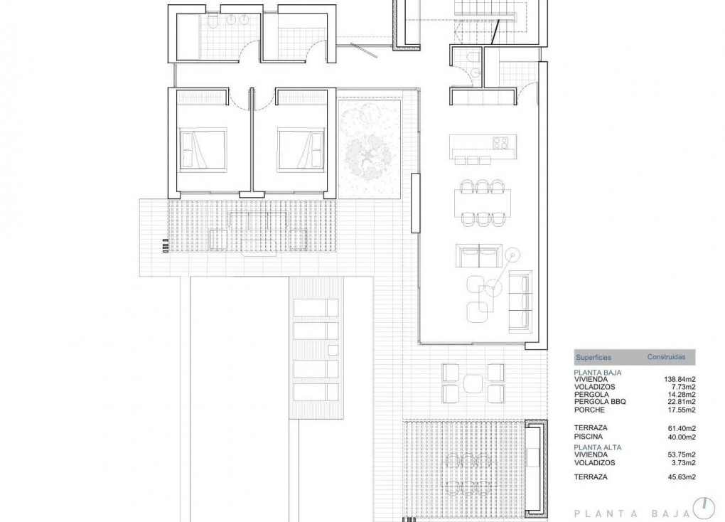
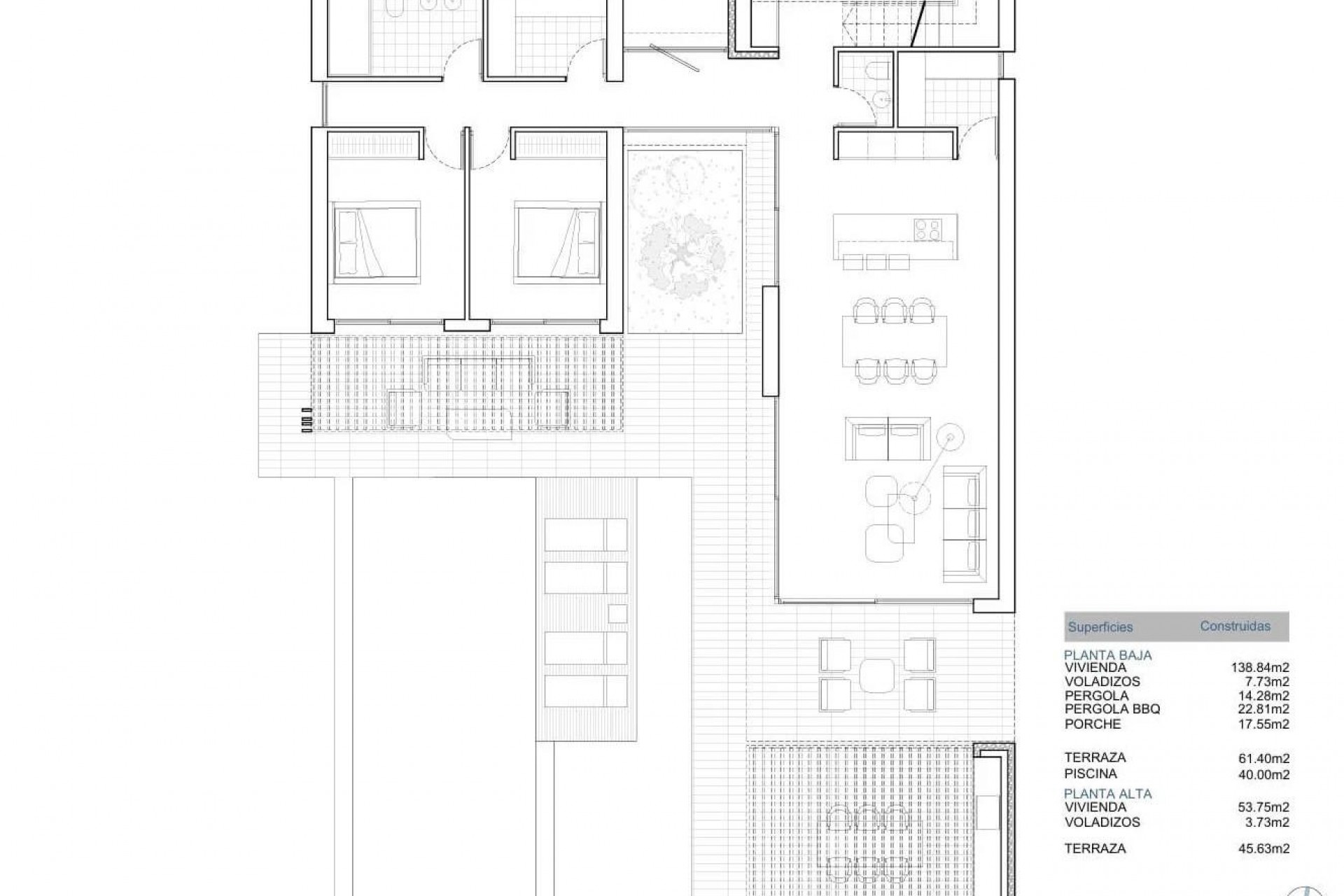
Villan är fördelad på två våningar och omfattar
Öppen planlösning med vardagsrum och matplats med smidig tillgång till terrasser och pool
Fullt möblerat kök med öppen planlösning
3 sovrum och 2 badrum plus 1 gästtoalett
Tvättstuga och skafferi
Privat trädgård, terrasser och poolområde med sommarkök
Privat mastersvit och utomhusliv
På bottenvåningen finns två sovrum, ett badrum och rymliga sällskapsutrymmen. På övervåningen erbjuder det stora sovrummet en privat oas med eget badrum, en generös klädkammare och en 45 m2 stor terrass, perfekt för att njuta av soluppgången och den medelhavsinspirerade brisen. Utomhusområdet har utformats för avkoppling, med en privat pool, solterrasser och en grönskande omgivning som garanterar lugn och avskildhet.
Utmärkt läge i norra Costa Blanca
Javea erbjuder en exceptionell livsstil med vackra stränder, vandringsleder, marinor, golfbanor och gourmetrestauranger. Staden ligger 92 km från Alicante och 105 km från Valencia.
Viktiga avstånd
Stranden och Cala del Portixol: 0,8 km
Javea hamn och marina: 8 km
Javea Golf Club: 10 km
Alicante flygplats: 100 km
Valencia flygplats: 125 km
Ditt medelhavshem väntar
Oavsett om du söker en permanent bostad, en lyxig semesterbostad eller en förstklassig investering, erbjuder denna villa avskildhet, komfort och ett exceptionellt läge vid kusten. Kontakta oss idag för mer information eller för att boka en visning av detta exklusiva moderna hem i Javea.
Den information som ges här utgör inte någon del av något kontrakt. Erbjudandet kan ändras eller dras tillbaka utan förvarning. Det angivna priset inkluderar inte skatter (moms/överlåtelseskatt) eller notarie- och registeravgifter, vilka beräknas enligt aktuella priser och tariffer.