Moderna villa de nueva construcción cerca del mar en Jávea
Vida mediterránea exclusiva en Jávea
Descubra esta impresionante villa contemporánea situada en una de las zonas más cotizadas y tranquilas de Jávea, a solo 800 metros del mar. Ubicada entre pinos y cerca de las famosas Cala de la Barraca y Cala del Portixol, esta residencia ofrece un estilo de vida privilegiado rodeado de naturaleza y belleza costera. Javea, situada en la Costa Blanca entre Alicante y Valencia, es conocida por sus aguas cristalinas, su encantador casco antiguo y su clima templado durante todo el año, lo que la convierte en uno de los destinos más deseados del Mediterráneo.
Diseño elegante y espacios abiertos y luminosos
Diseñada para ofrecer comodidad y estilo, esta villa presenta una arquitectura moderna con líneas suaves, grandes ventanales y una fluida integración entre el interior y el exterior. La luz natural baña cada rincón, creando un ambiente cálido y acogedor, ideal tanto para vivir como para recibir invitados.
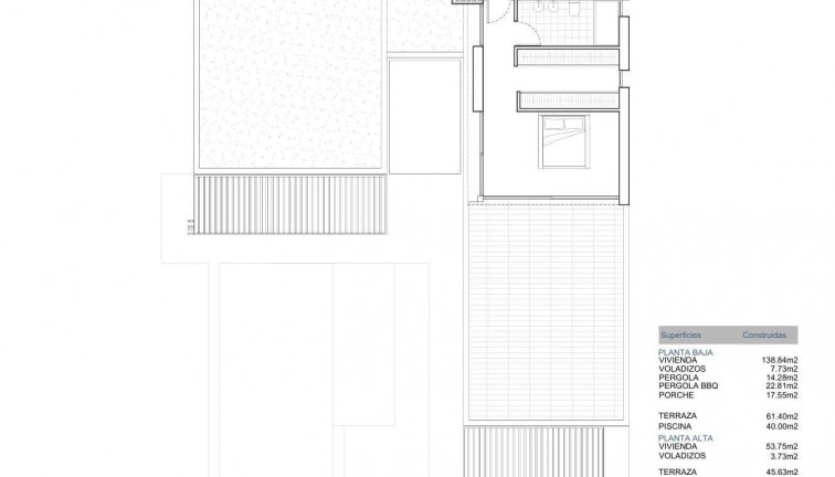
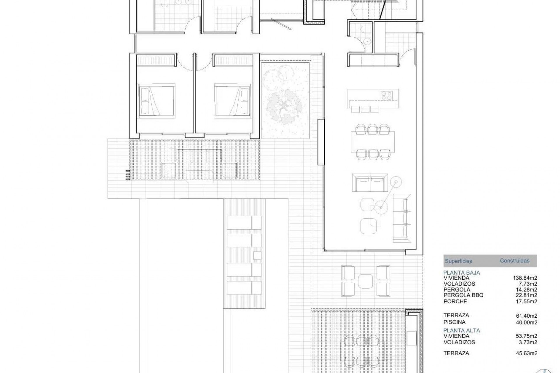
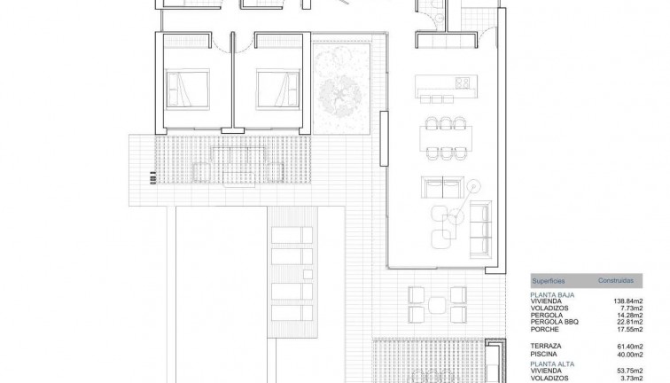
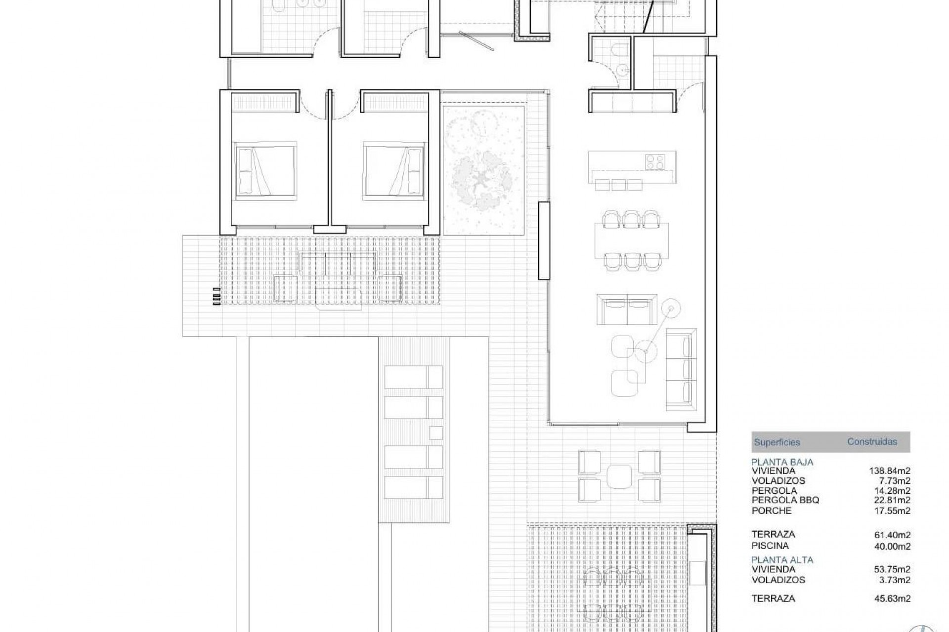
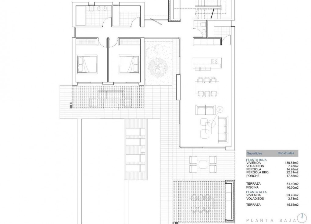
La villa se distribuye en dos plantas e incluye
Salón y comedor diáfanos con acceso directo a las terrazas y la piscina
Cocina abierta totalmente amueblada
3 dormitorios y 2 baños, además de 1 aseo de invitados
Lavadero y despensa
Jardín privado, terrazas y zona de piscina con cocina de verano
Suite principal privada y estilo de vida al aire libre
La planta baja incluye dos dormitorios, un baño y amplias zonas comunes. En la planta superior, el dormitorio principal ofrece un refugio privado con baño en suite, un amplio vestidor y una terraza de 45 m2, perfecta para disfrutar de las vistas del amanecer y la brisa mediterránea. El espacio exterior ha sido diseñado para el relax, con una piscina privada, terrazas para tomar el sol y un entorno exuberante que garantiza la tranquilidad y la privacidad.
Ubicación privilegiada en la Costa Blanca Norte
Javea ofrece un estilo de vida excepcional con hermosas playas, rutas de senderismo, puertos deportivos, campos de golf y restaurantes gourmet. La ciudad se encuentra a 92 km de Alicante y a 105 km de Valencia.
Distancias clave
Playa y Cala del Portixol: 0,8 km
Puerto y marina de Javea: 8 km
Club de golf de Javea: 10 km
Aeropuerto de Alicante: 100 km
Aeropuerto de Valencia: 125 km
Su hogar mediterráneo le espera
Tanto si busca una residencia permanente, un refugio vacacional de lujo o una inversión de primera calidad, esta villa le ofrece privacidad, comodidad y un entorno costero excepcional. Póngase en contacto con nosotros hoy mismo para obtener más información o concertar una visita a esta exclusiva y moderna vivienda en Jávea.
La información proporcionada por el conversor de divisas es orientativa y no constituye parte de ningún contrato. El precio final indicado no incluye impuestos (ITP/IVA) ni gastos notariales y registrales, que se calcularán según las tarifas y tasas vigentes.